Descrizione

CORTINA D'AMPEZZO - CORSO ITALIA: proponiamo in vendita al piano secondo e terzo appartamento su due livelli composto da: ingresso, soggiorno / zona living con uscita su una splendida terrazza abitabile con vista sul monte Faloria, cucina separata provvista di un comodo poggiolo, una camera matrimoniale con cabina armadio, un bagno, ripostiglio.
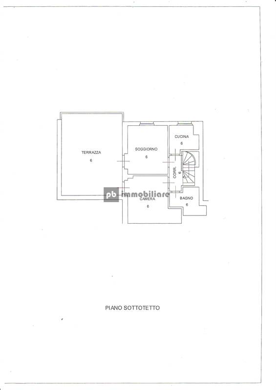
Al piano superiore mansardato: tre locali adibiti a soggiorno / zona living - possibile terza ampia camera - anch'essa con terrazza abitabile con vista sul Pomagagnon, Croda da Lago, Faloria e Tofane, camera matrimoniale, un bagno, un ampio ripostiglio.

L'immobile si colloca in Piazza Silvestro Franceschi a pochi passi dall'iconico Hotel della Poste e nel centro pulsante della vita mondana di Corso Italia.

Completano la proprieta' un esclusivo posto auto in Largo delle Poste e una cantina / magazzino.


Caratteristiche principali

Stato Immobile
Buono
Grado
Economico
Posizione
Montagna
Panorama
Vista Monti
Orientamento
Nord Ovest Sud Est
Lati Liberi
2
Tipo Soggiorno
Sala da Pranzo
Tipo Cucina
Semi Abitabile
Riscaldamento
Autonomo
Tipo Riscaldam.
Caldaia
Tipo Impianto
Radiatori
Fonte Energetica
Metano
Acqua Calda
Autonoma
Infissi
Legno Doppio Vetro
Serramenti
Buono
Persiana
Tapparella Legno
Pavim. Giorno
Parquet
Pavim. Cucina
Ceramica

Mappa

piazza silvestro franceschi , Cortina d'Ampezzo (BL)

Richiedi informazioni

Invia
Cookie preference